Thorbeckelaan 13

Omschrijving

Vruchtenbuurt. In 2020 inpandig compleet gerenoveerd riant 4/5 kamer appartement (134m²) met een groot balkon en een gemeenschappelijke fietsenberging. Deze moderne woning is o.a. voorzien van een royale woonkamer met een luxe open keuken voorzien van inbouwapparatuur, 3 slaapkamers en 2 luxe badkamers. Daarnaast beschikt de woning over kozijnen met dubbel glas, strak stuc- en schilderwerk, nieuwe centrale verwarming met radiatoren en nieuw leidingwerk (gas/water/elektra). Bovendien wordt de woning geleverd met 6 maanden garantie op de renovatiewerkzaamheden!

Dit luxe kantenklaarhuis biedt alle luxe en comfort van nu en is gelegen in de rustige maar gezellige Vruchtenbuurt. Gunstige ligging t.o.v. winkels (Goudsbloemlaan, De Savornin Lohmanplein, Vlierboom/Appelstraat), openbaar vervoer en diverse scholen. Groen-, sport- en recreatievoorzieningen alsmede zee, strand en duinen op enkele minuten fietsen bereikbaar.

Indeling:

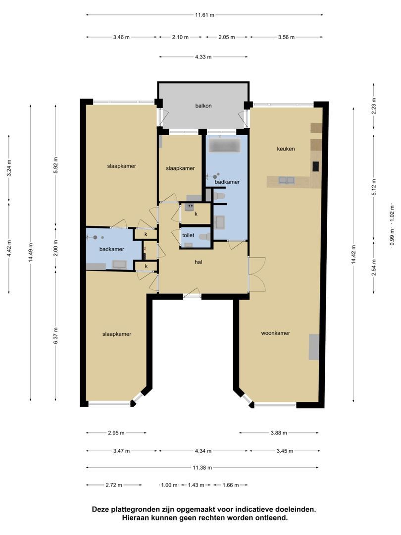
Woningentree via open portiek; ruime centrale hal ca. 4.34x2.54 met vaste kast voorzien van cv-opstelling en wasmachine aansluiting; openslaande deuren naar de woonkamer ca. 14.42x3.88/3.45 met een gasopen haard, fraaie schouw en een luxe open keuken in hoekopstelling welke o.a. is voorzien van een 5 pits gaskookplaat, afzuigkap, oven, magnetron, koelkast, vriezer, vaatwasser en toegang tot balkon; 1e slaapkamer ca. 6.37x2.95 aan de voorzijde met vaste kast; 2e slaapkamer ca. 3.24x2.10; 3e slaapkamer ca. 5.92x3.46 met vaste kast, toegang tot het balkon en toegang tot de 1e badkamer ca. 2.72x2.00 met inloopdouche en wastafelmeubel; 2e luxe badkamer ca. 5.12x2.05/1.66 met ligbad, inloopdouche, wastafelmeubel en toilet (wandcloset); ruim balkon ca. 4.33x2.23;

Bijzonderheden:

- Verwarming via een nieuwe cv-ketel uit 2020
- Geheel voorzien van kozijnen met dubbel glas
- Nieuw leidingwerk (gas/water/elektra)
- 6 maanden garantie op de renovatie
- Actieve VvE; bijdrage € 125,- per maand
- Eigen grond
- Woonoppervlakte 134m²
- Niet-bewoningsclausule en overdrachtsbelastingclausule is van toepassing
- In verband met het bouwjaar van de woning zal ongeacht de kwaliteit een ouderdomsclausule in de NVM koopakte worden opgenomen
- Oplevering per direct

Interesse in dit huis? Schakel direct uw eigen NVM-aankoopmakelaar in.
Uw NVM-aankoopmakelaar komt op voor uw belang en bespaart u tijd, geld en zorgen.
Adressen van collega NVM-aankoopmakelaars in Haaglanden vindt u op Funda.

Plattegronden

[ { "address": "Thorbeckelaan 13", "zipCode": "2564 BE", "city": "Den Haag", "lat": 52.0631144, "lng": 4.2596083, "heading": 0, "pitch": 0 } ]
[{"featureType":"water","stylers":[{"visibility":"on"},{"lightness":20},{"saturation":-42},{"hue":"#00ccff"}]},{"featureType":"landscape.man_made","elementType":"geometry","stylers":[{"visibility":"on"},{"saturation":-99},{"lightness":51}]},{"featureType":"road.arterial","elementType":"geometry","stylers":[{"saturation":-98},{"lightness":35}]},{"featureType":"road.highway","elementType":"geometry","stylers":[{"saturation":-95},{"lightness":-10},{"gamma":2.17}]},{"featureType":"poi.park","stylers":[{"visibility":"on"},{"lightness":30},{"saturation":-50},{"hue":"#a1ff00"}]},{"featureType":"poi.school","elementType":"geometry","stylers":[{"saturation":-25},{"lightness":12},{"hue":"#ffdd00"}]},{"featureType":"road.local","stylers":[{"saturation":-100},{"lightness":15}]},{"featureType":"administrative.neighborhood","stylers":[{"visibility":"on"},{"saturation":-100},{"lightness":35}]},{"featureType":"poi.attraction","elementType":"labels","stylers":[{"lightness":15},{"hue":"#ff005d"},{"visibility":"simplified"},{"saturation":-100}]},{"featureType":"road.arterial","elementType":"labels","stylers":[{"visibility":"on"},{"saturation":-98},{"lightness":41},{"gamma":0.75}]},{"featureType":"road.highway","elementType":"labels","stylers":[{"visibility":"simplified"},{"lightness":20},{"saturation":-60}]},{"featureType":"transit.line","stylers":[{"visibility":"simplified"},{"saturation":-25},{"lightness":35}]},{"featureType":"transit.station","elementType":"labels","stylers":[{"lightness":10},{"saturation":-72}]},{"featureType":"poi","elementType":"geometry","stylers":[{"lightness":15},{"saturation":7}]},{"featureType":"poi.place_of_worship","elementType":"labels","stylers":[{"visibility":"off"}]},{"featureType":"poi.sports_complex","elementType":"labels","stylers":[{"visibility":"off"}]},{"featureType":"road","elementType":"labels","stylers":[{"visibility":"off"}]},{"featureType":"road.local","elementType":"labels","stylers":[{"visibility":"on"},{"saturation":-100},{"lightness":21}]},{"featureType":"road.arterial","elementType":"labels","stylers":[{"visibility":"on"},{"lightness":25}]},{"featureType":"transit.line","stylers":[{"visibility":"off"}]},{"featureType":"poi","elementType":"labels","stylers":[{"saturation":-100},{"lightness":35}]},{}]

Interesse in deze woning?

Vul dan dit formulier in en wij nemen contact met je op. Voor al je vragen kun je natuurlijk ook bellen naar +31703604807.



Uw bericht is naar ons verzonden. Wij nemen zo snel mogelijk contact met u op.

Er is iets mis gegaan met het versturen van het formulier.
Controleer of u alle velden (goed) heeft ingevoerd en probeer het nog een keer.