Weteringkade 86 A

Omschrijving

"High-End Turn-Key bovenwoning"

Stijlvol wonen in een monumentaal bovenhuis dat is gebouwd in 1910 en is getransformeerd tot kleinschalig appartementencomplex.

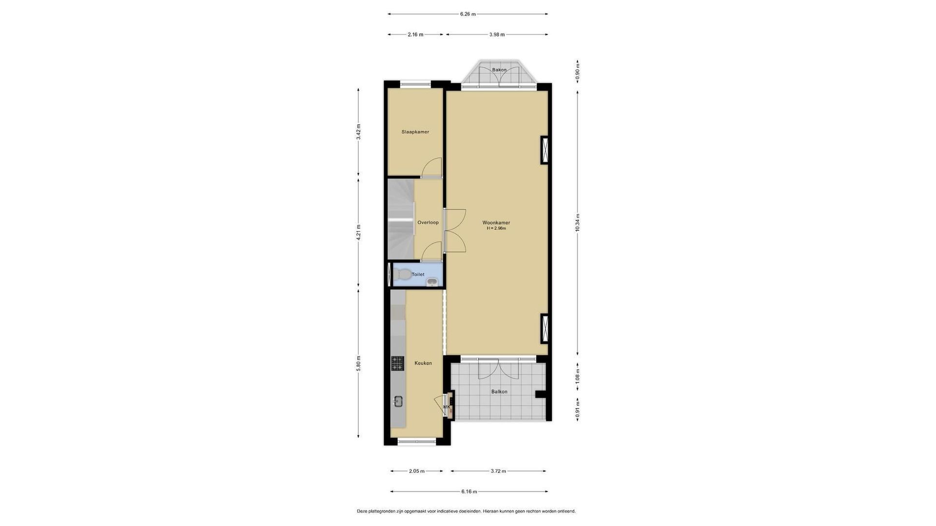
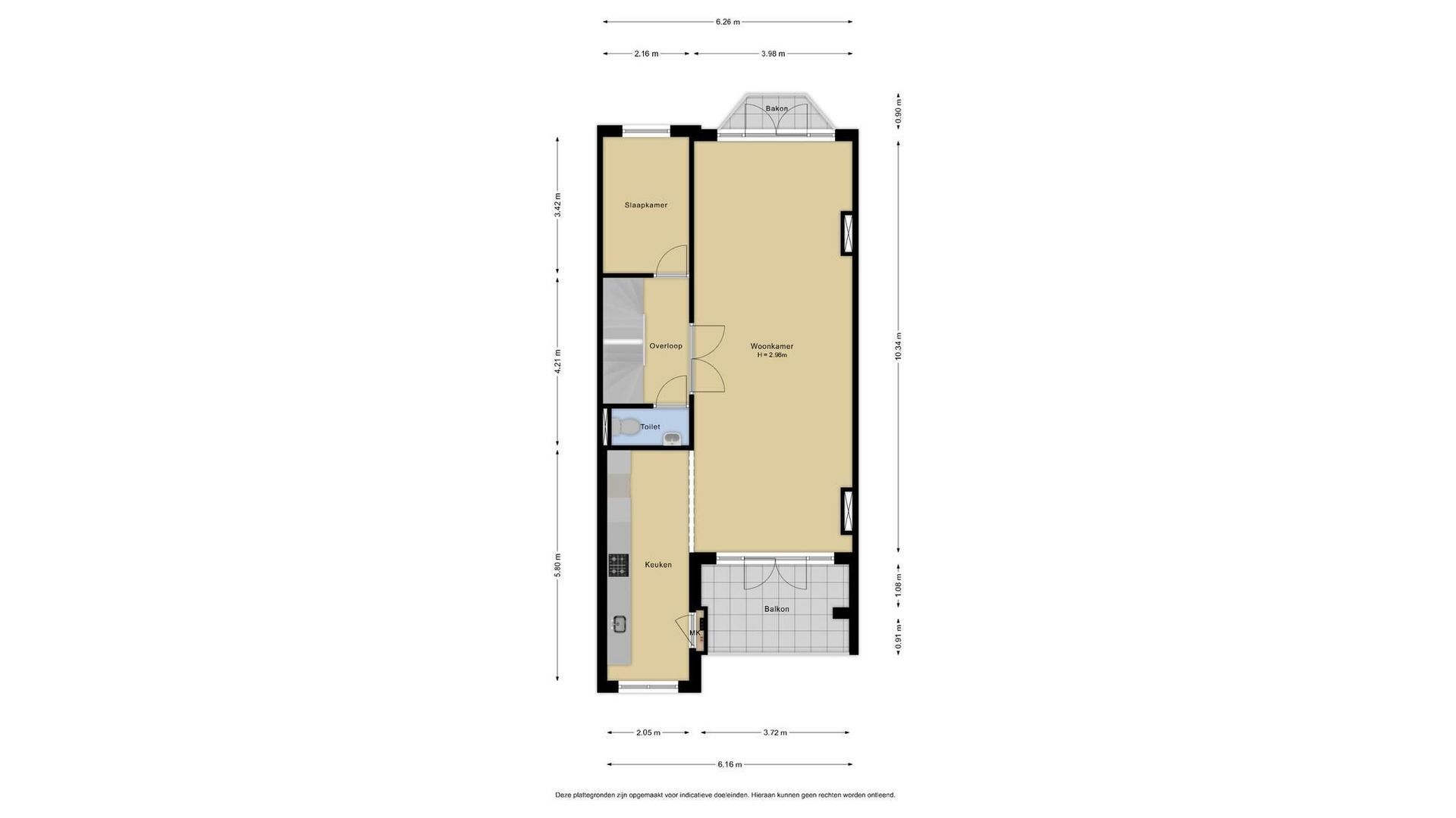
Het betreft een werkelijk schitterend 6-kamer bovenhuis op de tweede en nieuw opgetrokken derde etage met twee terrassen op de middag- en avondzon en voorzien van ca. 127 m² woonoppervlak verdeeld over gigantische living met hoog plafond, luxe open keuken, vier ruime slaapkamers en uitzonderlijk luxe sanitair.

De locatie is uitstekend te noemen op loopafstand van de Haagse binnenstad met een divers winkel en horeca aanbod, het openbaar vervoer van Station Holland Spoor en Den Haag Centraal.

Indeling:
Gezamenlijke entree op de begane grond, trap naar de tweede etage, overloop met apart toilet voorzien van fraai tegelwerk, wandcloset en fonteintje. Vanuit de overloop dubbele stalen deuren naar de woonkamer met voorbalkon en achterterras op de middag en avondzon, zijkamer aan de voorzijde en riante open keuken aan de achterzijde voorzien composiet werkblad, koel-/vriescombinatie, inductiekookplaat met geïntegreerde afzuiging en vaatwasser.

Vanuit de overloop een trap naar de derde etage, overloop met technische ruimte en apart toilet, zijkamer aan de achterzijde met tweede terras, ruime slaapkamer aan de achterzijde en ruime slaapkamer met dakramen aan de voorzijde. De luxe tussengelegen badkamer is voorzien van fraai tegelwerk, vrijstaand ligbad, meubel met ingebouwde kranen, spiegel met verlichting en handdoekradiator.

Aanvullende informatie:
- ’s-Gravenhage sectie R nummer 8860
- Aandeel nader te bepalen
- Energielabel A (inschatting, wordt nog definitief gemaakt)
- Bouwjaar 1910
- Eigen grond
- Woonoppervlak conform BBMI ca. 127 m²
- Buitenruimte totaal ca. 15 m²
- Compleet inwendig gerenoveerd 2023
- CV-combiketel Remeha 2022
- Volledig voorzien van dubbele beglazing
- Garantie op uitgevoerde werkzaamheden (6 maanden)
- VvE wordt opgestart en geactiveerd
- VvE maandelijkse bijdrage € 110,20 per maand
- Meerjaren onderhoudsplan beschikbaar
- Verkoop onder voorbehoud kadastrale splitsing
- Ouderdoms- en niet bewoningsclausule van toepassing
- Projectnotaris Rosenberg Polak
- Algemene verkoopvoorwaarden Plink Garantiemakelaars van toepassing
- Oplevering direct

Plattegronden

[ { "address": "Weteringkade 86 A", "zipCode": "2515 AS", "city": "Den Haag", "lat": 52.0745316, "lng": 4.3270897, "heading": 0, "pitch": 0 } ]
[{"featureType":"water","stylers":[{"visibility":"on"},{"lightness":20},{"saturation":-42},{"hue":"#00ccff"}]},{"featureType":"landscape.man_made","elementType":"geometry","stylers":[{"visibility":"on"},{"saturation":-99},{"lightness":51}]},{"featureType":"road.arterial","elementType":"geometry","stylers":[{"saturation":-98},{"lightness":35}]},{"featureType":"road.highway","elementType":"geometry","stylers":[{"saturation":-95},{"lightness":-10},{"gamma":2.17}]},{"featureType":"poi.park","stylers":[{"visibility":"on"},{"lightness":30},{"saturation":-50},{"hue":"#a1ff00"}]},{"featureType":"poi.school","elementType":"geometry","stylers":[{"saturation":-25},{"lightness":12},{"hue":"#ffdd00"}]},{"featureType":"road.local","stylers":[{"saturation":-100},{"lightness":15}]},{"featureType":"administrative.neighborhood","stylers":[{"visibility":"on"},{"saturation":-100},{"lightness":35}]},{"featureType":"poi.attraction","elementType":"labels","stylers":[{"lightness":15},{"hue":"#ff005d"},{"visibility":"simplified"},{"saturation":-100}]},{"featureType":"road.arterial","elementType":"labels","stylers":[{"visibility":"on"},{"saturation":-98},{"lightness":41},{"gamma":0.75}]},{"featureType":"road.highway","elementType":"labels","stylers":[{"visibility":"simplified"},{"lightness":20},{"saturation":-60}]},{"featureType":"transit.line","stylers":[{"visibility":"simplified"},{"saturation":-25},{"lightness":35}]},{"featureType":"transit.station","elementType":"labels","stylers":[{"lightness":10},{"saturation":-72}]},{"featureType":"poi","elementType":"geometry","stylers":[{"lightness":15},{"saturation":7}]},{"featureType":"poi.place_of_worship","elementType":"labels","stylers":[{"visibility":"off"}]},{"featureType":"poi.sports_complex","elementType":"labels","stylers":[{"visibility":"off"}]},{"featureType":"road","elementType":"labels","stylers":[{"visibility":"off"}]},{"featureType":"road.local","elementType":"labels","stylers":[{"visibility":"on"},{"saturation":-100},{"lightness":21}]},{"featureType":"road.arterial","elementType":"labels","stylers":[{"visibility":"on"},{"lightness":25}]},{"featureType":"transit.line","stylers":[{"visibility":"off"}]},{"featureType":"poi","elementType":"labels","stylers":[{"saturation":-100},{"lightness":35}]},{}]

Interesse in deze woning?

Vul dan dit formulier in en wij nemen contact met je op. Voor al je vragen kun je natuurlijk ook bellen naar +31703604807.



Uw bericht is naar ons verzonden. Wij nemen zo snel mogelijk contact met u op.

Er is iets mis gegaan met het versturen van het formulier.
Controleer of u alle velden (goed) heeft ingevoerd en probeer het nog een keer.